Les actualités
Nouvelle recherche Cette annonce m'intéresse

TERRAINS A BATIR VIABILISES - BENOISTVILLE

A vendre
Prix : 47 970,00 
Dont honoraires 2 970,00 € TTC inclus (6,19 %) à la charge de l'acquéreur, soit 45 000 € hors honoraires.
Type de bien : Terrain à bâtir
Terrain : 667,00m²
Localité : Benoîtville (50340) France
A vendre
Référence : VT274-50048

Description du bien

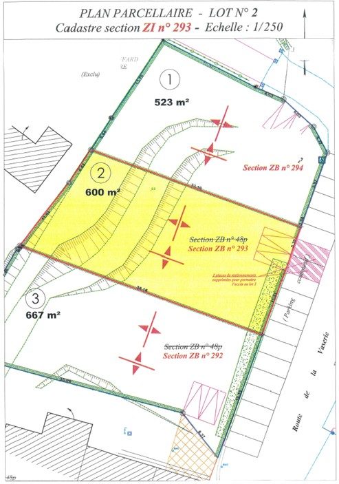
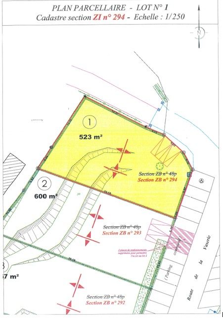
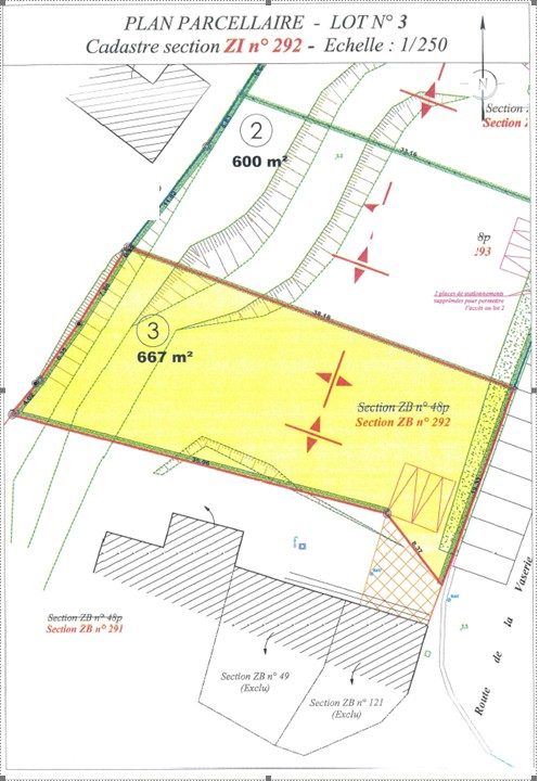
Dans le bourg de BENOISTVILLE, 3 terrains à bâtir viabilisés :
- lot 1 : 523 m² - 45.000 € net vendeur - VENDU
- lot 2 : 600 m² - 47.000 € net vendeur
- lot 3 : 667 m² - 49.000 € net vendeur
Assainissement individuel

Honoraires inclus de 6.6% TTC à la charge de l'acquéreur. Prix hors honoraires 45 000 €. Les informations sur les risques auxquels ce bien est exposé sont disponibles sur le site Géorisques : georisques.gouv.fr.

Caractéristiques

Terrain constructible : oui
Les informations sur les risques auxquels ce bien est exposé sont disponibles sur le site Géorisques : https://www.georisques.gouv.fr

Mandat

Nom du mandataire : Guillaume LE COUTOUR
Téléphone mandataire : 0612044279
E-mail mandataire : Veuillez utiliser le formulaire de contact ci-dessous ...
Négociateur : Guillaume LE COUTOUR

Cette annonce m'intéresse

Captcha
* Les champs suivis d'un astérisque sont obligatoires.

Conformément à la loi n°78-17 du 6 janvier 1978 modifiée relative à l'informatique, aux fichiers et aux libertés, et au règlement européen 2016/679, dit Règlement Général sur la Protection des Données (RGPD), vous disposez d'un droit d'accès, de rectification, de suppression des informations qui vous concernent.
Navigateur non pris en charge

Le navigateur Internet Explorer que vous utilisez actuellement ne permet pas d'afficher ce site web correctement.

Nous vous conseillons de télécharger et d'utiliser un navigateur plus récent et sûr tel que Google Chrome, Microsoft Edge, Mozilla Firefox, ou Safari (pour Mac) par exemple.
OK